Why Kitchen Layout Matters More Than You Think
When you think about a kitchen remodel, your mind might go to the “pretty” parts such as custom cabinets, tile, and countertops. But the details that truly change how you feel in your kitchen often lie in the layout. In reality, there is often much more flexibility in a kitchen than homeowners realize. With a careful evaluation of the space, small adjustments, such as moving an opening, reworking the configuration, or reclaiming a few inches of counter space, can completely change how the room functions. Below are six kitchen layout ideas we frequently make during kitchen remodels that can dramatically improve how a kitchen works.
#1: Restore Dining Room and Kitchen Connection
Sightlines play a powerful role in how a kitchen feels and functions. By modifying the opening between the kitchen and dining room, the space can instantly feel larger while allowing the two rooms to remain distinct yet connected. These spaces need to work together, but preserving the character of each room is just as important.
And when space is limited, this can be a smart way to make the most of what you have. It may also create the opportunity to add extra counter space with a peninsula island and sometimes even tuck in seating for casual meals. Suddenly, a kitchen you never imagined could feel open and functional becomes a space you truly enjoy spending time in.
Want to see more examples like this? Check out Opening the Flow in Your Old Home.
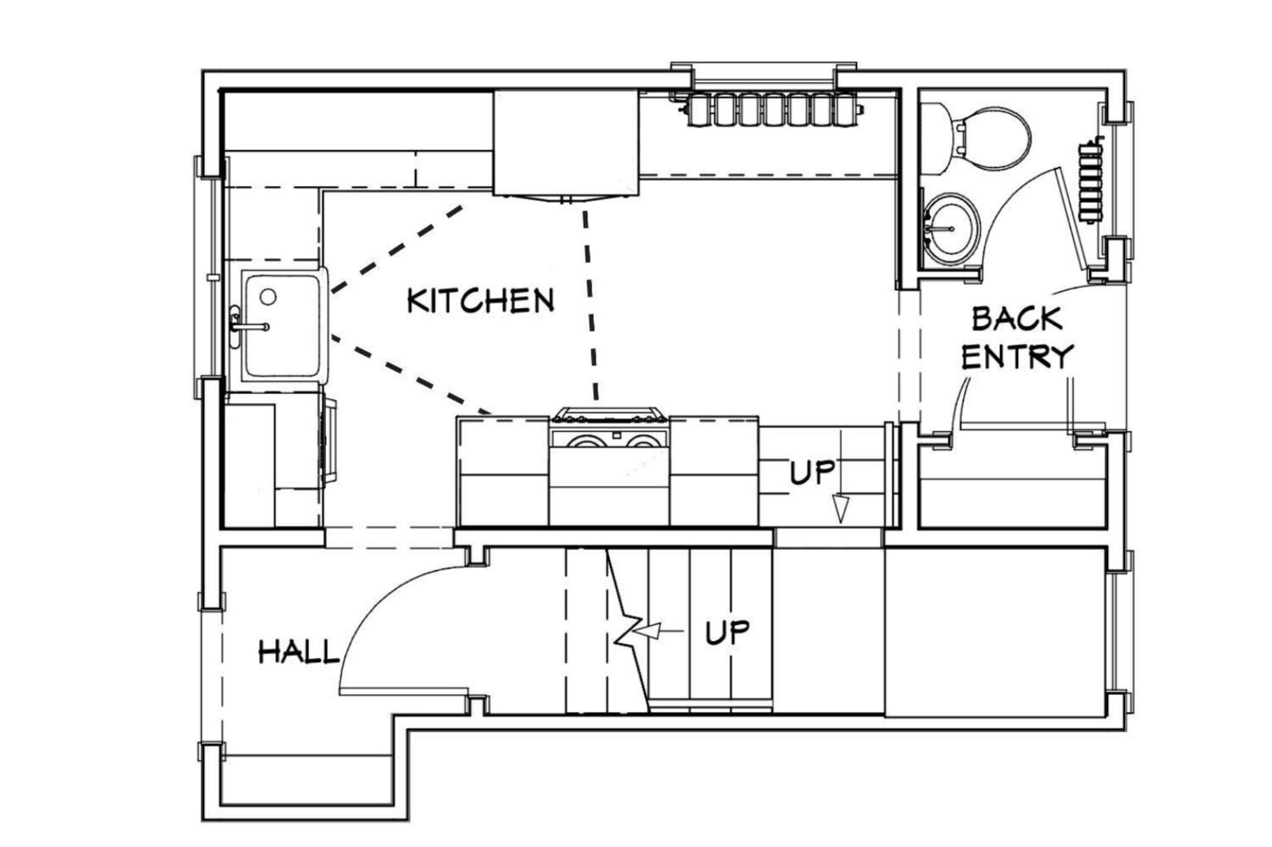
#2: Sometimes Closing a Wall Is the Right Move
Othertimes, we might recommend to go in the opposite direction. You can’t always just look at one room when remodeling your kitchen. Your main floor and that layout, needs a big picture lens.
For example, in this kitchen project, Classic Appeal, there was a powder room right off of it, eating up valuable kitchen space. We closed off that wall, and relocated the doorway to the powder room to enter from the sitting room.

#3: The Work Triangle
A powerful design tool in kitchen design is the work triangle. It focuses on how you move between the sink, refrigerator, and cooktop. The goal is to create efficient walking paths between these three points. By rearranging the layout, we can create a kitchen that feels balanced, efficient, and visually pleasing.


#4: Create Dedicated Zones
If your home has a larger kitchen, the layout may extend beyond the traditional work triangle, but the concept remains the same. The goal is to create logical zones rather than long, awkward walking paths. Coffee stations, baking areas, prep zones, and cleanup areas help distribute activity throughout the space and keep the kitchen functioning smoothly.
#5: Window Placement Matters
It’s typical to find large, low-sitting windows in older kitchens. We love windows, but when they interrupt countertop placement, we sometimes need to adjust their size or location.
In this Mighty Small Kitchen, we relocated the sink to sit below the windows, which is a common solution. Luckily, in this case, they overlook the backyard. By adjusting the window placement, we were able to create uninterrupted countertops, which makes a world of difference in how the kitchen functions.
#6: Continuous Flooring
It’s not unusual to uncover multiple layers of flooring during a remodel. Over time, new materials are often installed right over the old ones, which can leave the kitchen floor sitting higher than the hardwood in the dining room. That transition usually creates what we like to call a “toe stubber,” interrupting the flow between spaces.
When possible, we remove those layers and continue the hardwood into the kitchen so the floor sits on the same plane as the adjoining rooms.
When these details come together, the result is a kitchen with better flow and function.
If you’re considering a remodel, thoughtful planning can make all the difference. Learn more about our kitchen design and remodeling services or reach out and schedule a consultation!


